Geijoeng Concept Store
Geijoeng, a Chinese minimalist womenswear brand recently opened its doors in Coastal City. The interior design explores the interactivity between materials, light transmission, refraction, reflection, and fabric.
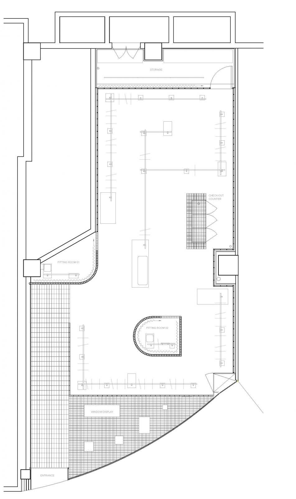
In this 120-square-meter space, through the use and layering of reflective, translucent and transparent materials combined with Kvadrat RafSimons’s green velour curtain and calibrated artificial lighting, Studio 10 wishes to create rich spatial hierarchy and ghostly spatial dimensions that coincides with Geijoeng’s minimalist and euphoric essence while contrasting with their Fall/Winter Collection of silk, wool, cashmere, velvet, and other rich texture of heavy textile.
The entrance corridor and window display are paved with glass bricks, beneath it vaguely peeks the Geijoeng greyish-green paint, the combination of the semi-reflective glass wall, half glass brick wall in the background and mirrored dropped ceiling illudes new compositions and projections of the space. Through the corridor, passing the glass brick wall and into the store, channel glass is used along the walls, behind it lies silver mirrored material allowing hints of green to refract and reflect throughout the space. The acrylic-tube- enclosed fitting room is placed carefully in the middle of the space in the same manner of that of a small stage, inside it hangs the green velour curtain to ensure privacy as well as exuding performance like purposes; when the curtain is opened, the interior and exterior of the fitting room is faintly visible creating theatrical effect and drama.
All garment hanging system is made of custom frosted acrylic rods connected with silver scaffolding metal joint that are highly adjustable and adaptable. The acrylic rods are set in a green marble base, which vary in size depending on their functionality as some are used as a display stand, bench or storage platform.
The interior flooring is paved with custom greyish-green terrazzo embedded with large dark green and white marble aggregate, embodying the brand’s determination in material and craftsmanship. The client team GEIJOENG worked closely with Studio 10 throughout the design and execution of the project.
Project Info:
Interior Designers: Studio 10
Location: Shenzhen, China
Area: 120 m²
Project Year: 2019
Photographs: Chao Zhang
The post Geijoeng Concept Store | Studio 10 appeared first on Arch2O.com.
https://www.arch2o.com/geijoeng-concept-store-studio-10/ September 29, 2020 at 04:00PM https://www.arch2o.com/wp-content/uploads/2020/09/Arch2O-geijoeng-concept-store-studio-10-18-700x472.jpg


No comments:
Post a Comment